位於中國廣州花都區的塱頭古村,近期迎來了一座揉合傳統與當代的教育地景。由知名建築師張永和領軍的非常建築操刀,這座名為「塱頭耕學+研學中心」的作品,不僅是唯品會慈善基金會推動鄉村振興的關鍵拼圖,更是對嶺南傳統書院文化的一次現代轉譯。
總樓地板面積達4039平方公尺的建築群,並非孤立存在,而是與鄰近的春陽台藝文中心形成策略聯盟,共同在珠江三角洲這片快速變遷的土地上,建立起一個具備文博展示與研學機能的綜合聚落。這類由企業資本挹注、頂尖建築團隊介入的模式,正逐漸成為中國農村轉型的重要路徑,試圖在保留歷史風貌與導入現代經濟活動之間取得平衡,避免古村落淪為空洞的觀光佈景,而是成為活生生的文化現場。


嶺南水鄉的紅磚復興:窯變工藝與在地記憶的物質對話
有別於塱頭古村傳統建築群普遍使用的青磚,設計團隊經過縝密的材料考據,敏銳地察覺到隨著歷史推移,紅磚已逐漸滲透並成為當地主要的營建語彙。為了在視覺上與古村紋理協調,同時區別於周遭粗糙的民宅,建築師選用了一種經過特殊工藝處理的「窯變紅陶磚」。
窯變紅陶磚的魅力在於不可預測性,由於在燒製過程中受到窯內溫差與氣氛的影響,每一塊磚都呈現出深淺不一的色澤變化,如同擁有獨立的指紋。這種自然的色差有效消弭了現代工業制磚帶來的機械化均質感,採用乾掛式工藝安裝的空心陶磚,內部穿插鋼管加固,既減輕了建築荷重,又通過變化的砌築方式,為立面賦予了豐富的表情與韻律,讓新建築在陽光下展現出如同有機生物般的生命力。

立體化的書院街:中庭與流動空間的社群重構
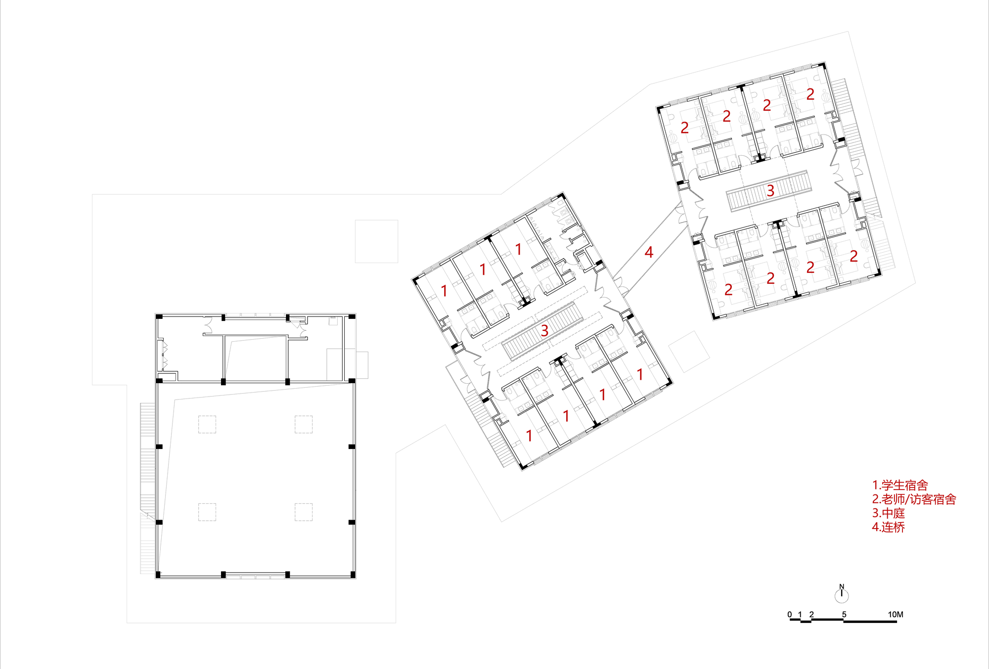
在空間佈局上,本案深受嶺南傳統民居「梳式佈局」與私塾書院文化的啟發。設計團隊將量體拆解為三個矩形單元,並以微小的角度偏轉,順應南側河岸蜿蜒的自然走勢。這種配置不僅呼應了舊時祠堂書室沿荷塘而建的風水智慧,更在內部創造出一條現代版的「書院街」。
室內空間的核心在於對垂直動線的精彩演繹,二、三層的宿舍區圍繞著挑高的中庭展開,這不僅是對傳統建築中「天井」功能的物理繼承,用於調節微氣候與通風採光,更是將其轉化為促進青少年交流的社交劇場。透過一座連接首層公共空間的大型樓梯,動線在不同樓層間穿梭流動,打破了樓層間的物理隔閡,讓視線與聲音得以自由穿透,營造出一種開放、透明且充滿歸屬感的社群氛圍。

耕讀傳家的當代演繹:觀景平台與地景的無縫接軌
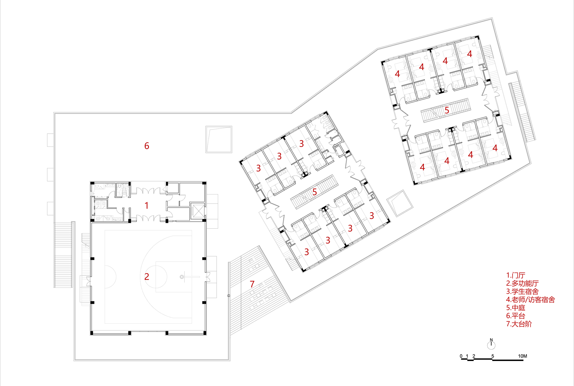
建築的頂層設計堪稱神來之筆,五處錯落有致的觀景平台成為了連接建築與地景的關鍵介面。這些平台不僅提供了俯瞰塱頭古村連綿屋脊的絕佳視角,更是孩子們進行戶外教學與休憩的空中庭園。特別是位於AB棟之間的大階梯設計,不僅在機能上串聯了不同高程的活動區域,下方懸挑結構所形成的灰空間,有效地為一樓活動區提供了遮陽避雨的庇護,適應了嶺南地區多雨炎熱的氣候特徵。
當學生們拾級而下,跨過拱橋,便能直接踏入對岸的農田,親手觸摸泥土,從書本到田野無縫銜接,體現了「耕讀傳家」的教育哲學,讓建築不再只是封閉的象牙塔,而是通往自然與歷史的開放門戶。

建築圖


